Passer au contenu
Visiter l'Expo
| Flanders Expo Gand | 10:00 - 17:00
Plus d'informations

Maison mitoyenne in Santa Pola

Alicante, Espagne
280 000 €
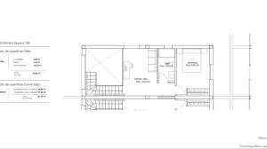
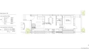
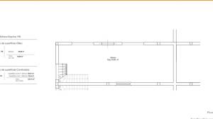
  • 76 m²
  • 105 m²
  • 2
  • 1
Plan

Description

Marquanthouses makelaarskantoor biedt deze woningen van hoge kwaleiteit aan met een onverslaanbare locatie in Lower Gran Alacant, op slechts een paar minuten lopen van verschillende cafés, restaurants, kappers, de plaatselijke school, een kleine kruidenierswinkel en nog veel meer. Zelfs niet ver weg vindt u de plaatselijke kerk, het park, verschillende supermarkten, wekelijkse markt, banken, tandartsen etc. Natuurliefhebbers en vogelaars zullen blij zijn te weten dat de Clot del Galvany naast de deur ligt en hectares ongerepte wetlands biedt. te verkennen, evenals bunkerruïnes uit de Burgeroorlog. Er zijn haltes voor de toerist, bus en trein die een goedkope manier bieden om de omgeving te verkennen. De prachtige zandstranden van Los Arenales en Carabassi zijn ongeveer 20 minuten lopen of 2 minuten rijden. Gran Alacant, gelegen aan de zonnige Costa Blanca, Zuid-Spanje, is een levendige strandwijkmet duikacademies en een bowlingclub. Een prachtig gebied vol natuur en cultuur met fiets- en wandelpaden. Alles wat je nodig hebt en veel om je te vermaken! De internationale luchthaven (ALC) ligt op slechts 10 minuten rijden met de auto. De provinciale hoofdstad Alicante met de AVE (hogesnelheidstrein) verbinding naar Madrid, Sevilla etc. Alicante is een kosmopolitische stad met een jachthaven, stranden, casino, universiteit, ziekenhuizen, het kasteel van Santa Bárbara in Alicante, vele winkels en diverso. De winkels van Corte Inglés liggen op slechts 14 kilometer afstand. U hoeft niet te rijden. Er is een busdienst naar Alicante en ook naar de nabijgelegen vissershaven van Santa Pola. Bovendien is de historische stad Elche, met zijn fascinerende Romeinse en Moorse erfgoed, vlakbij en het ontdekken waard. Alles ligt voor de deur, wat Gran Alacant een uitstekende locatie maakt om in Spanje te wonen of vakantie door te brengen in Spanje. Deze moderne design woningen zowel van binnen als van buiten. Het kenmerkt zich door zijn grote glazen pui die praktisch de hele dag door natuurlijk licht in het huis zorgt. De huizen zijn verdeeld in twee verdiepingen met een prachtige open houten trap in lineaire en eenvoudige afwerkingen. Buiten beschik je over een parkeertuin van 25 m2 en een achtertuin. Het heeft een gemeenschappelijk zwembad. Deze eigenschap moet worden bekeken om volledig te worden gewaardeerd. Deze woning biedt iedere potentiële koper een uitstekende woon- of vakantie woning. Met de luchthaven van Alicante op slechts 10 minuten afstand en alle voorzieningen die Gran Alacant te bieden heeft, is het onroerend goed ook aantrekkelijk voor de investeerder. Model Vision inlusief grote souterrain kamer 174.500 euros .PRIJS IS VANAF en de OPLEVERING 18-14 MAANDEN

Généralités

ID de la propriété
19897
Prix
280 000 €
Statut
te koop

Construction

Forme du bâtiment
Nouvelle construction
Type de propriété
Maison mitoyenne

Répartition

Nombre de chambres à coucher
2
Nombre de salles de bains
1
Superficie de la parcelle
105 m²
Surface habitable
76 m²

Piscine

Piscine

Adresse

Localisation
Land
ProvinceProvinceProvinceProvinceProvinceProvince
Regio

Informatie aanvragen

Wil je meer informatie over deze woning, vul je gegevens in en de aanbieder neemt direct contact met je op!

Plan

Proposé par :

Mijn2eHuis.nl

Mijn2eHuis.nl & Marquant Houses bieden u een professionele aanpak met A – Z begeleiding tijdens de gehele aankoopprocedure, vanaf het moment dat we uw zoekwensen duidelijk in beeld hebben gebracht tot en met de oplevering van uw nieuwe woning, en uiteraard de nazorg! We staan altijd klaar om uw vragen te beantwoorden.

Naast onze kennis en ervaring van ruim 30 jaar waar...

Vakantiewoningen te koop in Alicante, Espagne

  • Navigation dans la galerie

    Maison mitoyenne in Pilar De La Horadada

    Alicante, Espagne
    293 000 €
    Masa International
    • 2
    • 2
    • 60
    • Photos: 20
  • Navigation dans la galerie

    Maison mitoyenne in Pilar De La Horadada

    Alicante, Espagne
    296 000 €
    Masa International
    • 2
    • 2
    • 69
    • Photos: 20
  • Navigation dans la galerie

    Appartement in San Miguel de Salinas

    Alicante, Espagne
    219 900 €
    Nelemans Housing Solutions
    • 2
    • 2
    • 119
    • Photos: 8