Direct naar inhoud
Bezoek de beurs
| Flanders Expo Gent | 10:00 - 17:00
Meer informatie

Kavel in Alcantarilha

Faro, Portugal
€ 220.000
  • 577 m²
Kaart

Omschrijving

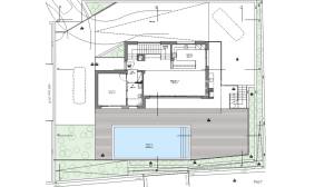
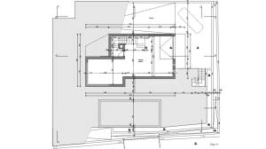
Ontdek een fantastische kans om een stuk grond te bezitten in de Algarve. Ideaal gelegen tussen Lagoa en Albufeira, ver weg van de drukke toeristische gebieden, biedt dit perceel de perfecte balans tussen rust en bereikbaarheid. Het is daardoor ideaal voor het bouwen van uw droomhuis, vakantiehuis of investeringsobject.Het perceel geniet van een rustige omgeving en ligt tegelijkertijd op korte rijafstand van prachtige gouden stranden, gerenommeerde golfbanen, een winkelcentrum met diverse winkels en alle essentiële voorzieningen, en op loopafstand van restaurants en winkels. Dankzij de gemakkelijke toegang tot de hoofdwegen bent u goed verbonden met omliggende plaatsen en de rest van de Algarve.Centraal gelegen met een goedgekeurd bouwplan voor een villa met 4(2+2) slaapkamers, tuin, privézwembad en een bebouwde oppervlakte van 180 m², bestaande uit:Kelder met garageBegane grond: hal, keuken, woonkamer, kantoor (kan als slaapkamer worden gebruikt), gang en doucheruimteEerste verdieping : hal, 2 slaapkamers, speelkamer (kan als slaapkamer worden gebruikt) en 3 badkamers.Dit perceel biedt een prachtig uitgangspunt om een unieke woning te creëren die perfect aansluit op uw levensstijl.

Algemeen

Woning ID
65456
Prijs
€ 220.000
Status
te koop

Bouw

Bouwvorm
Bestaande bouw
Soort woning
Kavel

Indeling

Perceeloppervlakte
577 m²

Adres

Plaats
Land
Provincie
Regio

Informatie aanvragen

Wil je meer informatie over deze woning, vul je gegevens in en de aanbieder neemt direct contact met je op!

Kaart

Aangeboden door:

Kaiser Properties

Kaiser Properties – Mediação Imobiliária, Lda. is een vergunninghoudend onroerendgoed- en vastgoedbeheerbedrijf (vergunning nr. 8389 AMI) gevestigd in Galé, Albufeira, Algarve, Portugal. Ons bedrijf is in 2008 opgericht door Family Kaiser, die sinds 1994 actief is op de onroerendgoedmarkt in de Algarve.

Wij zijn een groep toegewijde professionals die elke dag opnieuw...

Vakantiewoningen te koop in Faro, Portugal

  • Galerij navigatie

    Geschakelde woning in Albufeira

    Faro, Portugal
    € 559.000
    Kaiser Properties
    • 3
    • 3
    • 186
    • Foto's: 28
  • Galerij navigatie

    Appartement in Quelfes

    Faro, Portugal
    € 410.690
    Kaiser Properties
    • 2
    • 3
    • 129
    • Foto's: 28
  • Galerij navigatie

    Appartement in Quelfes

    Faro, Portugal
    € 505.690
    Kaiser Properties
    • 3
    • 4
    • 158
    • Foto's: 32