Direct naar inhoud
Bezoek de beurs
| Antwerp Expo Antwerpen | 10:00 - 17:00
Meer informatie

Appartement in Pilar De La Horadada

Alicante, Spanje
€ 290.000
  • 67 m²
  • 67 m²
  • 3
  • 2
Kaart

Omschrijving

Exclusieve nieuwbouwbungalows in Pilar de la Horadada – Unieke stijl en bevoorrechte locatie

Een unieke stijl die uw nieuwe huis definieert
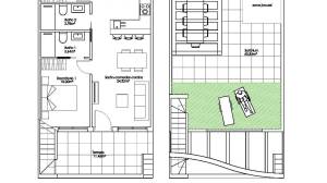
Deze nieuwe ontwikkeling van bungalows met 2 en 3 slaapkamers in Pilar de la Horadada valt op door het moderne ontwerp en de golvende structuur, die elke woning een unieke persoonlijkheid geeft.

Je zult kunnen kiezen tussen:

Begane grond met voortuin en achterpatio.
Bovenste verdiepingen met privésolarium.
Het wooncomplex heeft een gemeenschappelijk zwembad en ruime gemeenschappelijke ruimtes die zijn ontworpen voor de ontspanning en het plezier van de hele familie.

Daarnaast biedt het project een fitnessruimte buiten, een gemeenschappelijke jacuzzi en een parkeerplaats voor fietsen, evenals een parkeerplaats toegewezen aan elke woning met de mogelijkheid om elektrische voertuigen op te laden, ontworpen om je maximaal comfort en levenskwaliteit te bieden.

Lichte interieurs van hoge kwaliteit
Elke woning is ontworpen om een ervaring van comfort en functionaliteit te bieden. Open ruimtes maximaliseren het gevoel van ruimte en licht, terwijl neutrale en houten afwerkingen een elegante en gastvrije sfeer creëren.

Ruime en lichte slaapkamers, waarbij de hoofdslaapkamer toegang biedt tot een privéterras.
Open keuken, voor het gemak geïntegreerd in de woonkamer.
Moderne badkamers met materialen van topkwaliteit.

Pilar de la Horadada – Kwaliteit van leven aan de Costa Blanca
Pilar de la Horadada ligt in de provincie Alicante en is een kustplaats die traditie combineert met een ontspannen sfeer. Het staat bekend om zijn prachtige stranden, zoals Playa de las Higuericas, met goudkleurig zand en kristalhelder mediterraan water.

Naast de kustlijn heeft de stad een levendige hoofdstraat met winkels, supermarkten, restaurants en pittoreske pleintjes. De uitstekende infrastructuur omvat fietspaden, wandelpaden en een breed scala aan sportactiviteiten.

Nabijheid van belangrijke bezienswaardigheden
Dit wooncomplex biedt gemakkelijke toegang tot de belangrijkste bestemmingen in de omgeving:

Torre de la Horadada Strand – 3 km (5 minuten rijden).
Lo Romero Golfbaan – 5 km (10 minuten rijden).
Winkelcentrum La Zenia Boulevard – 15 km (15 min. rijden).
Luchthaven Corvera (Murcia) – 40 km (40 min. rijden).
Luchthaven Alicante – 55 km (55 min. rijden).

Verzeker uw Costa Blanca eigendom vandaag
Mis de kans niet om een gloednieuwe woning te kopen op een uitzonderlijke locatie. Neem vandaag nog contact met ons op voor meer informatie en om een bezichtiging te regelen.

Algemeen

Woning ID
30118
Prijs
€ 290.000
Status
te koop

Bouw

Bouwvorm
Nieuwbouw
Soort woning
Appartement

Indeling

Aantal badkamers
2
Aantal slaapkamers
3
Perceeloppervlakte
67 m²
Woonoppervlakte
67 m²

Zwembad

Zwembad

Adres

Land
Provincie
Regio

Informatie aanvragen

Wil je meer informatie over deze woning, vul je gegevens in en de aanbieder neemt direct contact met je op!

Kaart

Aangeboden door:

Aangeboden door:

House In Spain Invest

Op zoek naar uw droomhuis aan de Costa Blanca? ☀️ Wij zijn een Belgisch familiebedrijf met meer dan 20 jaar ervaring in vastgoed. Vanuit ons fysiek kantoor in Torrevieja begeleiden wij u stap voor stap bij de aankoop of verkoop van uw woning – of het nu gaat om een gezellige tweedehandswoning of een modern nieuwbouwproject. Als geregistreerd API-makelaar in het officiële register van...

Vakantiewoningen te koop in Alicante, Spanje

  • Galerij navigatie

    Vrijstaande woning in Elda

    Alicante, Spanje
    € 399.995
    Costa Group Estates
    • 4
    • 7
    • 1208
    • Foto's: 27
  • Galerij navigatie

    Vrijstaande woning in Cocentaina

    Alicante, Spanje
    € 1.950.000
    Costa Group Estates
    • 11
    • 13
    • 14871
    • Foto's: 10
  • Galerij navigatie

    Vrijstaande woning in Benferri

    Alicante, Spanje
    € 275.000
    Costa Group Estates
    • 3
    • 4
    • 666
    • Foto's: 32