Direct naar inhoud
Bezoek de beurs
| Antwerp Expo Antwerpen | 10:00 - 17:00
Meer informatie

Appartement in Pilar De La Horadada

Alicante, Spanje
€ 539.900
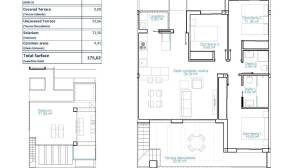
  • 81 m²
  • 81 m²
  • 3
  • 2
Kaart

Omschrijving

Luxe toeristische appartementen op slechts 150 meter van het strand van Las Higuericas – Torre de la Horadada

Exclusief nieuwbouwproject met verhuurvergunning inbegrepen
Welkom bij een nieuw wooncomplex in Torre de la Horadada, op slechts 150 meter van het gouden zand van het strand van Las Higuericas. Dit moderne project biedt 48 volledig ingerichte toeristische appartementen, allemaal geleverd met een korte termijn verhuurlicentie, waardoor het een ideale investering is voor vakantieverhuur of persoonlijk genot.

Kies uit 42 eenheden met 3 slaapkamers en 2 badkamers of 6 eenheden met 2 slaapkamers en 2 badkamers, allemaal zorgvuldig ontworpen om comfort, stijl en functionaliteit te maximaliseren.

Lay-outs ontworpen voor wonen aan de kust
Elke woning is afgestemd op verschillende levensstijlwensen:

Appartementen op de begane grond hebben een ruime privétuin met uitzicht op de gemeenschappelijke ruimtes.
Appartementen op de eerste verdieping hebben grote terrassen, sommige met gedeeltelijk uitzicht op zee.
Penthouses beschikken over privé solariums met uitzicht op zee en buitenkeukens, pergola’s, jacuzzi’s en kunstgras.

Alle woningen hebben een ondergrondse privéparkeerplaats en berging. De oplevering van de eerste fase is gepland voor de zomer van 2026.

Volledig uitgerust en klaar voor ingebruikname
Deze woningen zijn volledig uitgerust voor onmiddellijke ingebruikname, inclusief:

Complete meubels en inrichting in mediterrane stijl
Volledig ingerichte keukens met inbouwapparatuur
Onafhankelijke bijkeukens
Vloerverwarming in de hele woning
Airconditioning met kanaalaansluiting (warm/koud)
Beddengoed en huishoudelijke artikelen
Ramen zijn voorzien van elektrische rolluiken en Climasun thermisch-akoestisch glas, terwijl energiezuinige aerothermische systemen zorgen voor warm water.

Gemeenschappelijke ruimten in resortstijl om het hele jaar door van te genieten
Het complex beschikt over uitgebreide gemeenschappelijke voorzieningen, zoals:

Buitenzwembad voor volwassenen en kinderen
Kinderspeelplaats
Aangelegde groene zones
Wellnessruimte in de kelder met verwarmd binnenzwembad, massagestralen, sauna en een volledig uitgeruste fitnessruimte
Elk detail is ontworpen om bewoners en gasten een ontspannen en luxe mediterrane ervaring te bieden.

Toplocatie met gemakkelijke toegang tot topattracties
Deze onovertroffen locatie biedt nabijheid tot het beste van de Costa Blanca en Costa Cálida:

Las Higuericas Beach – 150 m
Lo Romero Golf Course – 10 km
Dos Mares Shopping Center – 11 km
Haven van San Pedro del Pinatar – 8 km
Luchthaven Murcia – 30 km
Luchthaven Alicante – 65 km

Verzeker vandaag nog uw investering aan de kust
Als u op zoek bent naar een vakantiehuis of een verhuurinvestering, dan is dit uw kans om een eersteklas woning in de buurt van het strand te bezitten in een van de meest gewilde gebieden. Neem nu contact met ons op voor meer informatie of plan je bezoek aan Torre de la Horadada!

Algemeen

Woning ID
30079
Prijs
€ 539.900
Status
te koop

Bouw

Bouwvorm
Nieuwbouw
Soort woning
Appartement

Indeling

Aantal badkamers
2
Aantal slaapkamers
3
Perceeloppervlakte
81 m²
Woonoppervlakte
81 m²

Zwembad

Zwembad

Adres

Land
Provincie
Regio

Informatie aanvragen

Wil je meer informatie over deze woning, vul je gegevens in en de aanbieder neemt direct contact met je op!

Kaart

Aangeboden door:

Aangeboden door:

House In Spain Invest

Op zoek naar uw droomhuis aan de Costa Blanca? ☀️ Wij zijn een Belgisch familiebedrijf met meer dan 20 jaar ervaring in vastgoed. Vanuit ons fysiek kantoor in Torrevieja begeleiden wij u stap voor stap bij de aankoop of verkoop van uw woning – of het nu gaat om een gezellige tweedehandswoning of een modern nieuwbouwproject. Als geregistreerd API-makelaar in het officiële register van...

Vakantiewoningen te koop in Alicante, Spanje